building-assessments9

Building Assessments and New Approaches in Senior Living Beyond COVID-19

We will never look at our residential environments the same way we did pre-pandemic, and through building assessments, we will improve our future infection containment strategies. In the following, we discuss what we learned during 2020 in senior living design. We identify the risk points in buildings or campuses where preventing or containing the spread of COVID-19 is challenging. Finally, we outline short and long-term building modifications that address prevention tactics for the spread of future infectious diseases.

What Did Work?

To assess what did and did not work during the previous year, we spoke with Bob Dehler, Engineering Program Manager at the Minnesota Department of Health (MDH). When asked what worked this past year, Bob says we've grown our appreciation for emergency preparedness. In years prior, this tended to be an ignored discussion. Now, we look forward to having a stronger emphasis on preparing our communities for unforeseeable events. Additionally, Bob says as a whole, we've grown in our understanding of infection control. Our communities now have significant knowledge of infection control methods for future pandemics due to our experience with COVID-19. Finally, we've increased our focus on ventilation, which will be discussed further in this article.

What Did Not Work?

Shifting to some of the challenges we experienced during the pandemic, Bob emphasized that having too many AHJ's (authorities having jurisdiction) caused confusion for communities complying with all jurisdiction codes. Finding solutions for infection control was crucial, and having open and honest communication to ensure jurisdictions could co-exist with said solutions was imperative. Another issue identified in the previous year was the understanding that communities may not utilize the same improvements. Certain buildings may not be able to accommodate adjustments depending upon many factors. Thus, all buildings must undergo facility condition assessments to identify solutions unique to them early in the process.

Safer Senior Living Communities

During the pandemic, the American Institute of Architects (AIA) released their Strategies for Safer Senior Living Communities. These guidelines proactively outlined areas of concern from an infection control standpoint. As a firm, we are actively engaged in these guidelines to ensure we're proactively designing from an infection control standpoint. Below are areas identified as locations of risk for infection spread in senior living communities:

  • Public Entrance/Lobby
  • Staff Entrance
  • Gathering Spaces
  • Households
  • Resident Rooms
  • Surfaces
  • HVAC

In the following, we provide our architectural and engineering outlook, as well as potential modifications for creating safer environments for the list of spaces outlined above.

Public Entrance/Lobby

Before the pandemic, the main goal of public entrances was to provide a welcoming environment that reflected the values of a community. While that is still the case, we've enhanced our design goals to ensure all stakeholders feel safe about infection control. This includes specific measures such as creating family visiting area(s) in lobbies or household entrances to mitigate traffic and additional visiting rooms for guests.

Public Entrance/Lobby - Building Modifications

Short-Term:

  • Hand sanitizer and screening station near the public entrance.
  • Spatially scattered seating areas.

Long-Term:

  • Hand hygiene stations in visible areas, allowing proper hand hygiene for all stakeholders.
  • Convertible room for family to visit with access from the vestibule.
  • Porch or patio to expand safe visiting locations seasonally.
building-assessments10
Achieving long-term goals by designing a porch entrance to expand family visiting areas seasonally.

Staff Entrance

From a staff perspective, we want to make sure safety is of the utmost importance. Safety protocols such as screening and hand hygiene are available at staff entrances as it is crucial to mitigate the potential spread of pathogens. Additional improvements to this location include staff locker rooms adjacent to entrances and adequate storage for personal protective equipment (PPE) if needed in the future.

Staff Entrance - Building Modifications

Short-Term:

  • Hand sanitizer and screening station near the staff entrance. Consider adding a handwashing sink near the staff entrance.

Long-Term:

  • Handwashing sink near the entrance (which provides better hand hygiene than hand sanitizer).
  • Adjust staff locker room location.
  • PPE storage room near staff entry.

Gathering Spaces

An increasingly important value in all industries is space, specifically a space’s flexibility. Having areas that can transform to accommodate guidelines, such as social distancing, allows for functionalities to continue to occur while keeping participants safe. As we look to the future, we predict flexibility will grow in prevalence.

Building assessments12
Providing flexible gathering space is essential to residents wellbeing

Group Gathering Spaces - Building Modifications

Short-Term:

  • Technology for remote viewing.
  • Hand Sanitizer placement at entry.

Long-Term:

  • Exit directly out of large gathering spaces.
  • Outdoor pre-event space.
  • Increased ventilation.

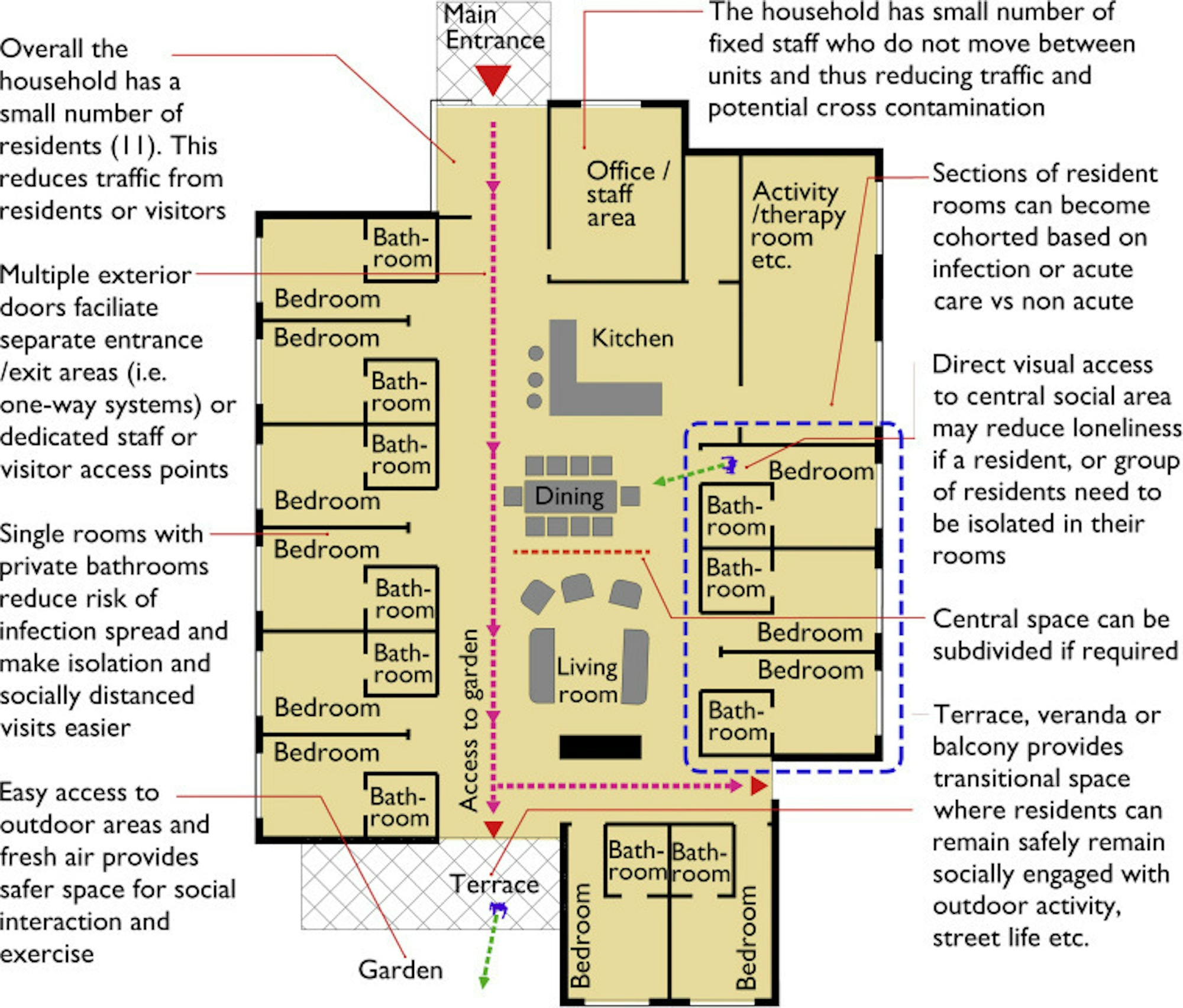
Households

Building assessments11
Household Model Floor Plan

Through our discussions with clients, we understand communities designed with a household model fared better than traditional configurations during the pandemic. Living in smaller clusters or "bubbles'' allowed for an easier containment process if a resident was diagnosed with COVID-19. Moving forward, we want to enhance the self-sustainment of each household. In doing this, we can mitigate traffic patterns of other households during a future pandemic or need.

Buidling assessments8

Resident Rooms

Having a room that feels like home is essential for residents, especially during times of quarantine. As we look to the future, we want to continue to ensure residents feel safe and at-home in private rooms and bathrooms. Providing access to outdoor views and natural light and enhancing safety measures play a vital role in creating home-like environments.

Resident Rooms - Building Modifications

Short-Term:

  • Hand sanitizer at all room entrances.
  • Technology for virtual family visits.

Long-Term:

  • Increase private room count.
  • Ability to add negative pressure to all rooms or a specific series of cohorted rooms.
building-assessments5
Private Resident Room and Restroom

Surfaces

The pandemic emphasized the importance of having a rigorous cleaning schedule for buildings, specifically the surfaces stakeholders utilize. Looking to the future, we want to ensure surfaces still incorporate home-like design elements while also withstanding cleaning procedures.

Surfaces - Building Modifications

Short-Term:

  • Change to antimicrobial materials.
  • Hands-free technologies such as motion sensor lights, automatic doors.
  • Reduce surfaces for clutter, magazines, etc.

Additional Design Considerations

When working with outdoor areas, it's essential to consider what needs residents have. This includes coverage from both the wind and sun, easy access for residents using wheelchairs and walkers and visibility to the community. Residents want to see community activity and a design should not hinder them from that. Finally, we recommend incorporating separate delivery drop-off areas for increased efficiency and safety.

Assessing Your Buildings' HVAC Systems

To mitigate the spread of COVID-19, the most effective measures have proven to be social distancing, masking up, efficient cleaning and other sanitation measures. In general, disabling heating, ventilating and air-conditioning systems is not a recommended measure to reduce the transmission of a virus. While HVAC systems have not been proven to be an effective measure of mitigation, we recommend buildings go through the inspection of all ventilation systems to optimize performance and provide a healthier environment to its users. Each building’s condition is unique, and various factors must be taken into account to understand where improvements can be made. Below, we provide several tips to ensure a healthy environment.

building-assessments6

Equipment Considerations

Ensure existing systems are operating at peak efficiency. On-site maintenance staff can typically perform these items:

  • Replace air handling unit filters and consider upgrading.
  • Visually inspect filter racks to ensure a tight seal to limit air by-pass.
  • Visually inspect the operation of outside air dampers to ensure they are functional.
  • Visually inspect the outside air path to ensure it is unobstructed.
  • Visually inspect the interior of air handling units and coil surfaces for cleanliness.
  • Review air delivery in each room to ensure diffusers and grilles are open and not physically obstructed.

Building Automation System Considerations

  • Review operating systems 24/7 during times of high use. Most Long Term Care facilities should have continuous operating systems in resident areas as default but review each system independently.
  • Modify time of day scheduling of systems to flush building areas before and after occupancy for a minimum of 2 hours, where systems are not occupied by residents 24/7.
  • Where systems have de-humidification capability, verify they are operating to maintain humidity below 60%.
  • Regularly monitor key trend data available through the building automation system, i.e. outside airflow rates, CO2 values, temperatures and humidity levels.

Short-Term Solutions: Filters

The filter MERV rating (Minimum Efficiency Reporting Values) identifies the effectiveness of an air filter. The higher the MERV rating, the smaller the particle the filter can capture. The COVID virus is 0.125-micron in size but may be spread as a biological aerosol with a 0.5-3.0 micron size. A filter that effectively removes airborne particulates within this size range will benefit in mitigating the risk of COVID-19 transmission.

The target filter efficiency rating should be a minimum MERV 13 or higher if possible. A MERV 13 filter, on average, will remove a minimum of 75% of the airborne particles ranging from 0.3 to 1.0 microns and 90% of particles ranging from 1.0-3.0 microns. The higher the filter MERV rating, the more significant the air pressure drop. The challenge with installing higher MERV-rated filters than designed initially is that they need to work within the constraints of the existing system capabilities. When upgrading the filter efficiency rating, we recommend consulting a design professional to determine the effect on the system air delivery.

Building assessments7
Minimum Efficiency Reporting Values (MERV) Rating Scale

Long-Term Solutions: HVAC

Provide systematic testing of the controls and systems related to delivering outside air for ventilation. Testing through a certified third party will certify that the systems are operating per the design criteria. The scope of re-commissioning can be scaled to work within a budget.

  • Re-commissioning of ventilation systems.
  • Rebalance existing HVAC systems to increase total airflow to occupied space and confirm all pressure relationships.
  • Functionally test ventilation controls over the full range of operation.
  • Measure outside ventilation air quantities and adjust to maintain minimum ventilation rates over the full range of operating conditions.
  • If present, service and re-calibrate airflow-measuring stations.
  • If present, calibrate and service CO2 sensors.

Designate Isolation Area(s)

Suppose a resident or other building occupant displays symptoms indicating a possible viral infection. In that case, it will be necessary to have a policy for isolation to protect other building occupants until safely removing the individual from the site. Verify the following features:

  • Verify adequate ventilation air is provided.
  • Verify exhaust systems are present and are functioning to maintain a negative pressure relative to the adjacent spaces.
  • Eliminate the return air path such that room air does not cross-contaminate adjacent spaces.
  • Identify households and individual resident rooms that could be set up as negative air.

Ventilation System Enhancements

Add features to the existing building systems to improve the effectiveness in removing virus contaminants. Each instance would need to be studied by a design professional to determine the practicality and budget to complete the work.

  • Increase outside ventilation air beyond code minimum (up to 100%) to reduce the air re-circulated within the system. Implement with careful consideration of the system capacity limits and the outside air conditions.
  • For variable air volume systems, provide discharge air temperature reset based on space temperature demand. Allowing for a higher discharge air temperature (while still maintaining the space temperature setpoint) will increase the total airflow. Modern control systems are capable of automating this control.
  • Evaluate and reconfigure systems for clean-to-less clean directional airflow layout.
  • Install controls and systems to maintain relative humidity within the recommended range of 40-60%. Evidence suggests that viruses survive better in high humidity environments.

Ventilation System Enhancements - Technology

  • Consider installing ultraviolet (UV) sanitizing lights in the air-handling units. UV sanitizing lights have been shown to deactivate microbes on surfaces and suspended in the air. Most applications to date have been directed to cooling coil surfaces. UV systems can be configured for disinfecting coil surfaces or within the airstream. We recommend consulting a design professional to review specific applications.
  • Consider installing Bipolar ionization technology to continuously disinfect both the breathing space and surfaces of the indoor environment. Systems can typically be retrofitted into the existing duct distribution system or installed directly in a space.
  • Carefully consider the potential unintended health risks sometimes associated with these systems. To date, there is not an independent study to validate the safety and effectiveness of these applications.

We recommend consulting a design professional to assist in assessing your building’s condition and enhancing it through new approaches. Evaluation of the existing systems is necessary when considering upgrades or modifications. Our architectural and engineering team at Wold can assist as needed to determine the right approach for your community through our wide variety of experiences. Additionally, below are several resources that we recommend to learn more about building assessments and creating safer communities.

Resources and References

AIA Strategies for Safer Senior Living Communities

ASHE: COVID-19 Resources

ASHE: Negative Pressure Rooms

The Center for Health Design: COVID-19 Resources for Healthcare Facilities

Leading Age Minnesota

LTC Facility Self-Assessment Tool

MDH COVID Guidance

MDH: Engineering Services

Nursing Home Design and COVID-19: Balancing Infection Control, Quality of Life, and Resilience from JAMIDA

More Insights